
Miete € 1.070,– inkl. BK
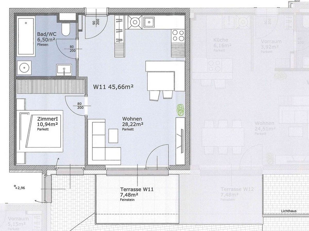
45,5 m² Wohnfläche + 7,5 m² BalkonTerrasse + Keller und AAP
inkl. Einbauküche
Moderne 2-Zimmer-Wohnung mit überdachtem Südbalkon und traumhaftem Bergblick in Walchsee . Diese 46 m² große Neubauwohnung aus dem Jahr 2021 befindet sich im 1. Obergeschoss eines modernen Gebäudes in ruhiger, zentrumsnaher Lage und ist bequem mit dem Lift erreichbar. Die Wohnung ist sofort verfügbar und bietet einen Tiefgaragenstellplatz mit E-Ladestation sowie ein Kellerabteil.
Die Wohnung überzeugt mit einem offenen Wohn-/Ess-/Kochbereich mit viel Tageslicht, einem großzügigen Schlafzimmer mit optimaler Stellfläche und einem Badezimmer mit Dusche, Badewanne und WC. Der 7,5 m² große überdachte Südbalkon bietet einen herrlichen Blick auf das Kaisergebirge und ist ideal für Loungemöbel. Die hochwertige Ausstattung umfasst eine Einbauküche mit Stein-Arbeitsplatte, Backofen auf Augenhöhe, große Kühl-/Gefrierkombination, Cerankochfeld mit Dunstabzug, Geschirrspüler und indirekter Beleuchtung. In den Wohn- und Schlafräumen wurde Eichenparkett verlegt, im Küchenbereich hochwertige Fliesen. Die Wohnung verfügt über elektrische Außenrollos, Fußbodenheizung (Gas) und ist barrierefrei sowie rollstuhlgerecht gestaltet.
Raumaufteilung
Eingangsbereich, Küche/Wohnen, Balkon/Terrasse, Zimmer, Bad/WC, Kellerabteil, TG-Autoabstellplatz
Moderne 2-Zimmer-Wohnung mit überdachtem Südbalkon und traumhaftem Bergblick in Walchsee . Diese 46 m² große Neubauwohnung aus dem Jahr 2021 befindet sich im 1. Obergeschoss eines modernen Gebäudes in ruhiger, zentrumsnaher Lage und ist bequem mit dem Lift erreichbar. Die Wohnung ist sofort verfügbar und bietet einen Tiefgaragenstellplatz mit E-Ladestation sowie ein Kellerabteil.
Die Wohnung überzeugt mit einem offenen Wohn-/Ess-/Kochbereich mit viel Tageslicht, einem großzügigen Schlafzimmer mit optimaler Stellfläche und einem Badezimmer mit Dusche, Badewanne und WC. Der 7,5 m² große überdachte Südbalkon bietet einen herrlichen Blick auf das Kaisergebirge und ist ideal für Loungemöbel. Die hochwertige Ausstattung umfasst eine Einbauküche mit Stein-Arbeitsplatte, Backofen auf Augenhöhe, große Kühl-/Gefrierkombination, Cerankochfeld mit Dunstabzug, Geschirrspüler und indirekter Beleuchtung. In den Wohn- und Schlafräumen wurde Eichenparkett verlegt, im Küchenbereich hochwertige Fliesen. Die Wohnung verfügt über elektrische Außenrollos, Fußbodenheizung (Gas) und ist barrierefrei sowie rollstuhlgerecht gestaltet.
Raumaufteilung
Eingangsbereich, Küche/Wohnen, Balkon/Terrasse, Zimmer, Bad/WC, Kellerabteil, TG-Autoabstellplatz
Rufen Sie uns einfach an:
+43 664 1536251
Ihr ISI Immobilien Team





